Tranzakció adatok

Státusz: Eladó
Azonosító (ID): 360691007-5135
Ingatlan ára: 96.500.000 HUF
Elérhetőség: +36-70-418-1960

Ingatlan képei

Az ingatlan értékesítője

Kovács Péter

Kovács Péter

H & K Ingatlaniroda

Üzenet a hirdetőnek:

ADATLAP NYOMTATÁSA

Megosztás

Alapadatok

Elhelyezkedés:
Erdőkertes
Tranzakció típusa:
Eladó
Főkategória:
ház
Alkategória:
családi ház
Lakóterület:
121 m2
Telek mérete:
690 m2
Szobák száma:
5
Építés éve:
2025
Ingatlan állapota:
kitűnő állapotú
Ingatlan szint száma:
1
Kilátás:
kertre néző
Víz:
bevezetve
Csatorna:
bevezetve
Gáz:
nincs adat
Villany:
bevezetve
Fűtés:
hőszivattyú
Kiegészítő fűtés:
padlófűtés
Komfort:
duplakomfortos
Parkolás:
nincs

Jellegzetességek

Leírás

4651/2: Új építésű, földszintes családi házak Erdőkertesen!

Új építésű, földszintes családi házak Erdőkertesen!

CÉGES ÉPÍTKEZÉS, a 2024-től aktuális állami támogatások valamint kedvezményes, kamattámogatott hitelek felvehetőek – akár a 3%-os OTTHON START hitel, CSOK PLUS, babaváró is igényelhető, az ügyintézésben díjmentesen segítünk!

Az építő munkájára jellemző a megbízhatóság és igényesség, leinformálható, referencia házai megtekinthetők.

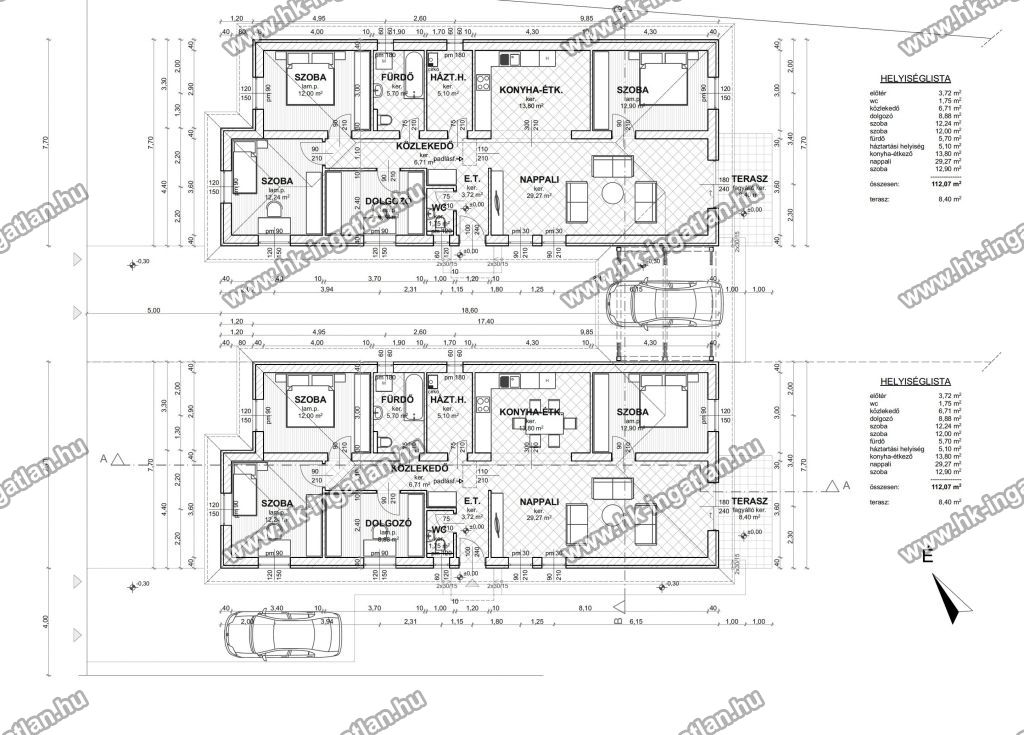
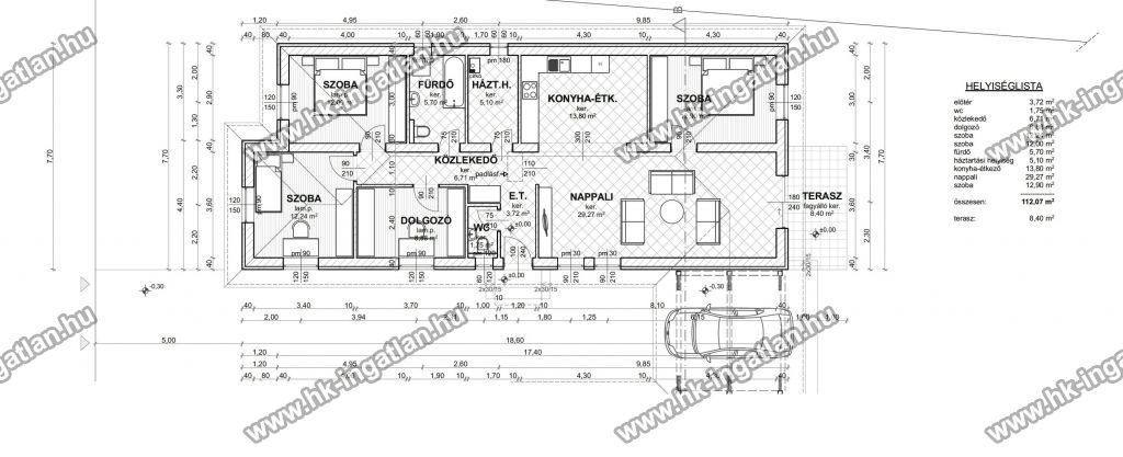
Az ingatlanok elrendezése kiváló: 112 nm hasznos alapterület (+ 8 nm terasz), nappali + 4 szoba, dupla-komfortos kialakítással, lakásonként nagy telekrészekkel (1-es lakás kb. 600 nm, 2-es lakás kb. 690 nm).

Az ingatlanok csak a fedett beállónál érintkeznek, közös faluk nincs!

Rövid műszaki leírás:

A ház falai 30-as PTH téglából épülnek, 10 cm grafitos homlokzati szigeteléssel, E-gerendás födémmel.

A tető szerkezete betoncseréppel lesz fedve, antracit színben.

Az ablakok műanyag szerkezetűek, 3 rétegű hőszigetelő üvegezéssel, fehér színben.

A fűtés és meleg vízellátás hőszivattyúval kerül kialakításra, a hő leadás padlófűtéssel történik.

Kiegészítésként hűtő-fűtő klíma lesz használható, melynek az előkészítése a vételár részét képezi.

Helyiségek:

Nappali 29,27 nm, konyha 13,8 nm, négy szoba 12,9 - 12,24 - 12 és 8,8 nm, fürdőszoba 5,7 nm, háztartási helyiség 5,1 nm, WC 1,7 nm, előtér 3,72 nm, közlekedő 6,7 nm, terasz 8,4 nm.

Parkolás zárt udvari beállón kerül kialakításra.

Az ingatlan kulcsrakész állapotban kerül átadásra, konyhabútor nélkül.

Belső nyílászárók, szaniterek és a burkolatok választhatók, a belső műszaki tartalomban megjelölt összegig a vételár részét képezik.

A fotókon az építő már elkészült azonos kialakítású háza látható.

Kulcsrakész ár: 96.500.000.- Ft

Azonosító: 4651/2-es lakás