Tranzakció adatok

Státusz: Eladó
Azonosító (ID): 360691007-5068
Ingatlan ára: 89.900.000 HUF
Elérhetőség: +36-70-418-1960

Az ingatlan értékesítője

Kovács Péter

Kovács Péter

H & K Ingatlaniroda

Üzenet a hirdetőnek:

ADATLAP NYOMTATÁSA

Megosztás

Alapadatok

Elhelyezkedés:
Vácrátót
Tranzakció típusa:
Eladó
Főkategória:
ház
Alkategória:
ikerház
Lakóterület:
102 m2
Telek mérete:
300 m2
Szobák száma:
5
Építés éve:
2025
Ingatlan állapota:
kitűnő állapotú
Ingatlan szint száma:
1 + tetőtér
Kilátás:
kertre néző
Víz:
bevezetve
Csatorna:
bevezetve
Gáz:
nincs adat
Villany:
bevezetve
Fűtés:
hőszivattyú
Kiegészítő fűtés:
padlófűtés
Komfort:
duplakomfortos
Parkolás:
telken beálló

Jellegzetességek

Leírás

4592: Vácrátót természet közeli részén, kiváló minőségben épülő ikerház mindkét lakása eladó!

Vácrátót természet közeli részén, kiváló minőségben épülő ikerház mindkét lakása eladó!

A két lakás csak a tárolókkal helyiségeknél érintkezik, a lakótereknek nincs közös fala, így nincs áthallás!

CÉGES ÉPÍTKEZÉS, a 2024-től aktuális állami támogatások valamint kedvezményes, kamattámogatott hitelek felvehetőek – akár a 3%-os OTTHON START hitel, CSOK PLUS, babaváró is igényelhető, az ügyintézésben díjmentesen segítünk!

Az építő munkájára jellemző a megbízhatóság és igényesség, leinformálható, referencia házai megtekinthetők.

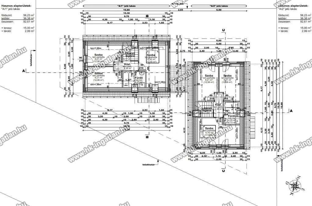
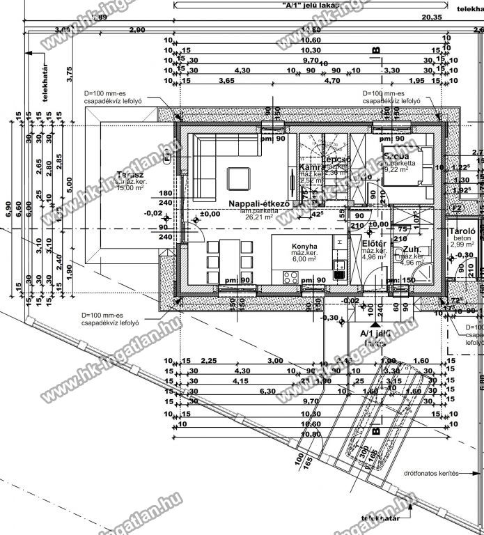
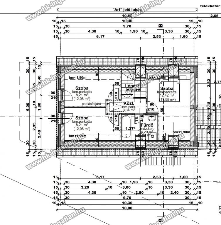
A lakások 560 nm-es saroktelekre épülnek, bruttó területük 102 nm, nettó lakótér 93 nm + terasz + tároló, amerikai-konyhás nappali + 4 szobával, duplakomfortos elrendezéssel.

A lakások nagyon praktikus elrendezéssel kerülnek megépítésre:

A földszinten tágas amerikai konyhás nappali, nagy terasszal, hálószoba, zuhanyzó, kamra előszoba és tároló kerül kialakításra.
A tetőtérben három nagyméretű hálószoba valamint fürdőszoba kap helyet.
 

Rövid műszaki tartalom:

A külső főfalak Porotherm 30-as téglából, 15 cm külső, grafitos szigeteléssel és a födémen 30 cm szigeteléssel épülnek.

A tető betoncserét fedést kap.

Hőszigetelt, energia hatékony, műanyag szerkezetű nyílászárók kerülnek beépítésre.

Klíma és riasztó előkészítése a vételár részét képezi.

Az energiatakarékosságot a hőszivattyúval történő fűtési rendszer biztosítja, a hő leadás padlófűtéssel történik.

Parkolás: a telken belül, viacolorral burkolt beállón kerül kialakításra.

A ház kulcsrakész állapotban kerül átadásra, konyhabútor nélkül.

Belső nyílászárók és a burkolatok választhatók, a belső műszaki tartalomban megjelölt összegig a vételár részét képezik.

 

Ára: 89.900.000.- Ft/lakás

Azonosító: 4592