Tranzakció adatok

Státusz: Eladó
Azonosító (ID): 360691007-5139
Ingatlan ára: 88.000.000 HUF
Elérhetőség: +36-70-418-1960

Az ingatlan értékesítője

Kovács Péter

Kovács Péter

H & K Ingatlaniroda

Üzenet a hirdetőnek:

ADATLAP NYOMTATÁSA

Megosztás

Alapadatok

Elhelyezkedés:
Vácrátót
Tranzakció típusa:
Eladó
Főkategória:
ház
Alkategória:
ikerház
Lakóterület:
93 m2
Telek mérete:
300 m2
Szobák száma:
5
Építés éve:
2025
Ingatlan állapota:
kitűnő állapotú
Ingatlan szint száma:
2
Kilátás:
kertre néző
Víz:
bevezetve
Csatorna:
bevezetve
Gáz:
nincs adat
Villany:
bevezetve
Fűtés:
hőszivattyú
Kiegészítő fűtés:
padlófűtés
Komfort:
duplakomfortos
Parkolás:
telken beálló

Jellegzetességek

Leírás

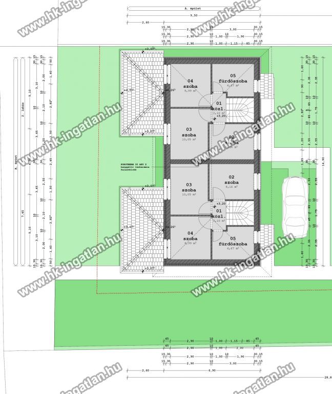
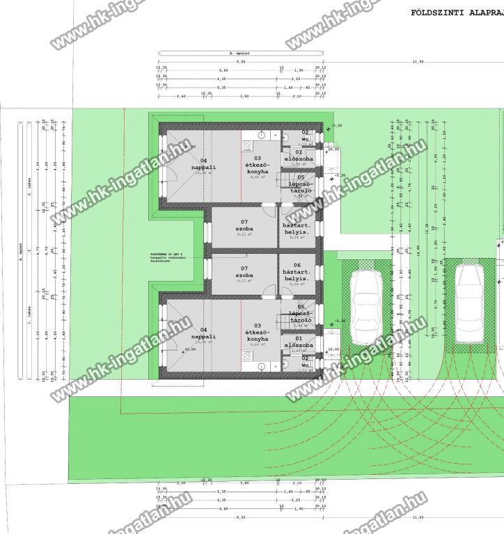
4653: Új építésű ikerház mindkét fele eladó!

Új építésű ikerház mindkét fele eladó!


Az építő munkájára jellemző a megbízhatóság és igényesség, leinformálható, referencia házai megtekinthetők.

A lakások nettó lakóterülete 85,28 nm + terasz, amerikai-konyhás nappali + 4 szobás, dupla-komfortos elrendezéssel, kb. 300 nm-es telekrésszel.

Rövid műszaki tartalom:
A ház 30-as POROTHERM téglából épül, 15 cm-es külső szigeteléssel, beton födémmel, mely 30 cm-es ásványgyapot szigeteléssel kerül kivitelezésre.
A tető barna színű, nagyszilárdságú, anyagában színezett betoncserép-fedést kap.
A homlokzati nyílászárók hőszigetelésű üvegezéssel ellátott műanyag szerkezetek, fehér színben.
A fűtés - meleg víz ellátást monoblokk rendszerű, levegő-víz hőszivattyú biztosítja, a
fűtési hő leadás padlófűtéssel történik, a fürdőszobákban törülközőszárítós fűtőtesttel kiegészítve.

A szobákba laminált parketta, a vizes helyiségekben kerámia burkolat kerül, a belső műszaki tartalomban vállalt árakig.

Parkolás udvari beállón kerül kialakításra.

A lakások kulcsrakész állapotban kerülnek átadásra, konyhabútor nélkül.

Burkolatok, szaniterek választhatók, a belső műszaki tartalomban vállalt árig a vételár részét képezve.

Ár: 88.000.000.- Ft/lakás
Azonosító: 4653