Tranzakció adatok

Státusz: Eladó
Azonosító (ID): 360691007-5098
Ingatlan ára: 147.250.000 HUF
Elérhetőség: +36-70-418-1960

Az ingatlan értékesítője

Kovács Péter

Kovács Péter

H & K Ingatlaniroda

Üzenet a hirdetőnek:

ADATLAP NYOMTATÁSA

Megosztás

Alapadatok

Elhelyezkedés:
Veresegyház
Tranzakció típusa:
Eladó
Főkategória:
ház
Alkategória:
ikerház
Lakóterület:
130 m2
Telek mérete:
500 m2
Szobák száma:
5
Építés éve:
2025
Ingatlan állapota:
kitűnő állapotú
Ingatlan szint száma:
2
Kilátás:
kertre néző
Víz:
bevezetve
Csatorna:
bevezetve
Gáz:
nincs adat
Villany:
bevezetve
Fűtés:
hőszivattyú
Kiegészítő fűtés:
hőszivattyú
Komfort:
duplakomfortos
Parkolás:
garázs épületen belül

Jellegzetességek

Leírás

4623: Magas műszaki tartalommal épülő ikerház mindkét lakása eladó Veresegyházán!

Magas műszaki tartalommal épülő ikerház mindkét lakása eladó Veresegyházán!

A ház csendes, zöldövezeti részen épül, a Hegyekben.

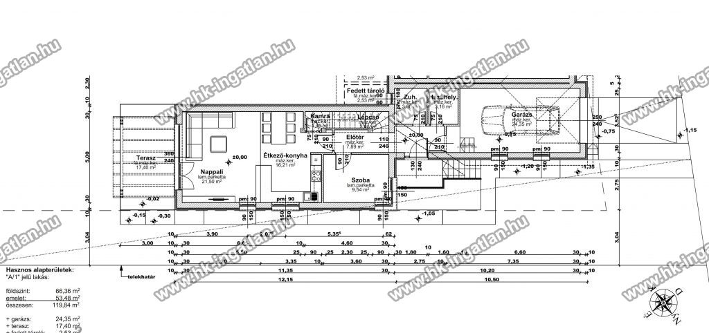
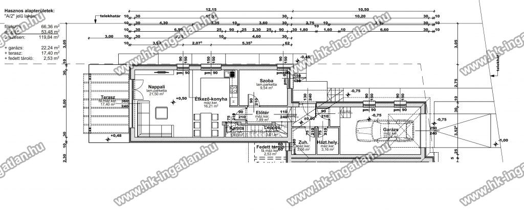
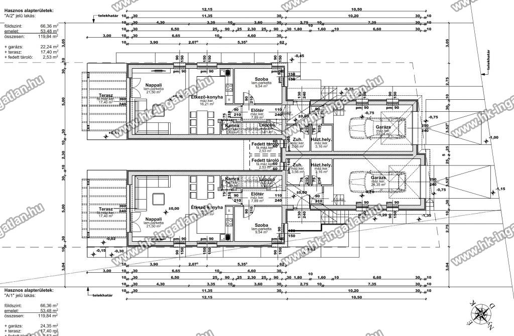
A lakások belső elrendezése azonos, lakóterük 120 nm + garázs 22,24 nm + terasz 17,4 nm + fedett külső tároló 2,53 nm, amerikai-konyhás nappali + 4 szobával, belső-kétszintes, dupla-komfortos elrendezéssel.

A lakásokhoz 500 – 500 nm-es saját kert tartozik.

Parkolás: épületen belüli, lakáskapcsolatos garázsban történik.

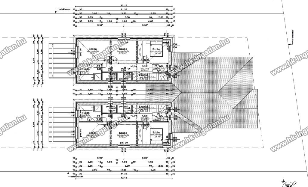
Helyiséglista:
Földszint: előszoba 7,89 nm, nappali 21,5 nm, konyha-étkező 16,21 nm, kamra 1,49 nm, szoba 9,54 nm, zuhanyzó 3,56 nm, háztartási helyiség 3,16 nm, terasz 17,4 nm, garázs 24,35 nm, fedett tároló 2,53 nm – nettó: 66,36 nm
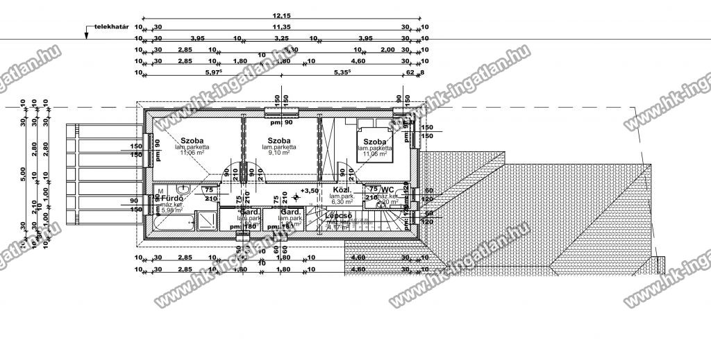
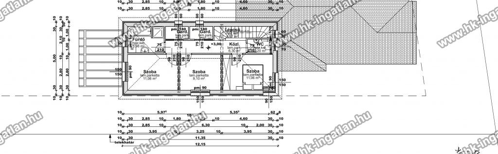
Emelet: 3 szoba 9,1 nm, 11,06 nm, 11,06 nm, fürdőszoba 5,98 nm, külön WC 2,2 nm, 2 gardrób 1,8 nm, 1,8 nm, lépcső 4,17 nm, közlekedő 6,3 nm – nettó: 53,48 nm
 

Rövid műszaki tartalom:
A ház külső falai Porotherm téglából épülnek, 12 cm-es dryvit szigeteléssel.

A tető beton cserépfedést kap, pakolható padlástérrel.

Az ablakok 3 rétegű, műanyag szerkezetű, thermo üveggel ellátva kerülnek beépítésre, bukó- nyíló rendszerrel.

A fűtést HŐSZIVATTYÚ biztosítja, a hő leadás padlófűtéssel kerül kialakításra.

A szobákban laminált parketta, a vizes helyiségekben kerámia lapok kerülnek, a belső műszaki tartalomban vállalt összegig a vételár részét képezve.

Extrák, melyeket az alapfelszereltség tartalmaz: hőszivattyús fűtési rendszer (padlófűtéssel),
elektromos redőny előkészítés, klíma kiállás minden szobában, napelem előkészítés, magas minőségű szigetelés és nyílászárók.

CÉGES ÉPÍTKEZÉS, a 2024-től aktuális állami támogatások valamint kedvezményes, kamattámogatott hitelek felvehetőek.

Az építő munkájára jellemző a megbízhatóság és igényesség, leinformálható, referencia házai megtekinthetők.

Ára: 147.250.000.- Ft

Azonosító: 4623